聯係電話:
0523-8733 8088
產品(pǐn)詳情
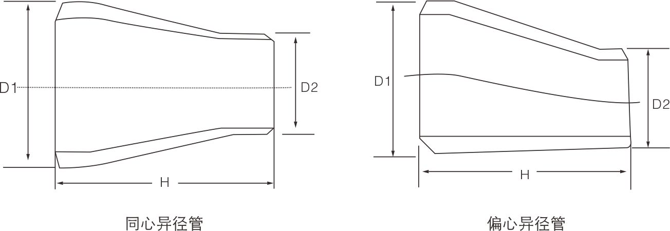
化工管件之(zhī)一(yī),用(yòng)於兩種不同管徑的連接。又分為同心大小頭和偏心大小(xiǎo)頭(tóu)兩種。材質包(bāo)括不鏽鋼(gāng)大小頭(304304l316316l),合金鋼,碳(tàn)鋼大小頭,大小頭20號鋼Q235、Q345等。


化工管件之(zhī)一(yī),用(yòng)於兩種不同管徑的連接。又分為同心大小頭和偏心大小(xiǎo)頭(tóu)兩種。材質包(bāo)括不鏽鋼(gāng)大小頭(304304l316316l),合金鋼,碳(tàn)鋼大小頭,大小頭20號鋼Q235、Q345等。



蘇公網安備 32128302001489號