Tel
0523-8733 8088
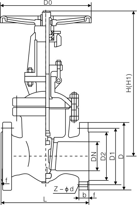
The national standard wedge gate valve is suitable for cutting or connecting pipeline media in various systems of petroleum, chemical, hydraulic, and thermal power plants with a nominal pressure of PN1.6~6.4MPa and a working temperature of -29 ℃~550 ℃. Applicable media include: water, oil, steam, acid, alkali, ammonia, urea, sulfur-containing natural gas, etc.
◆ Compact structure, reasonable design, good valve rigidity, smooth channel, and low flow resistance coefficient;
◆ The sealing surface is made of stainless steel and hard alloy, with a long service life;
◆ Adopting flexible graphite filler, reliable sealing, and easy and flexible operation;
◆ The driving methods include manual, pneumatic, electric, gear transmission, and hydraulic;
◆ The structural forms are elastic wedge single gate and rigid wedge single gate double gate.






